ADECUACIÓN y RE-HABILITACIÓN DEL MERCADO Y PROYECTO DE OTROS PUNTOS DE VENTAS

PROYECTO Y EJECUCIÓN:
Estudio JONNY GALLARDO & Asoc.

Asesores del proyecto: Arq. Gustavo Ochoa, Arq. Lucas Dunkler
Fotografía: Est. Jonny Gallardo.
Gráfica: Est. Jonny Gallardo.
Gestión Financiera: CFI.
Asesor Técnico del proyecto: Arq. Eduardo Barrón por CFI.
Promotor: Secretaría de Cultura de la Provincia de La Rioja.
Ubicación: Catamarca esq. Pelagio Luna. La Rioja – Argentina.

El objetivo del Mercado de Artesanías de la Ciudad de La Rioja es entender en materia de compra y venta de artesanías tradicionales, en la ciudad de La Rioja y en otros puntos como ferias, representaciones de la Provincia en otras ciudades y eventos específicos, también el de validar los objetos que se comercializan como potenciar el trabajo de los artesanos y su actividad mediante una forma organizada y sistematizada de ofrecer los objetos. Fuertemente enfocado en los materiales propios de la región y preocupado en el rescate de saberes tradicionales que por cuestiones generacionales están a punto de extinguirse.
También interviene en la organización, promoción, difusión, defensa, financiamiento, coordinación y ejecución de los planes, programas y proyectos de desarrollo de la actividad artesanal.
Todo esto con la participación del gobierno provincial, por medio de su secretaría de cultura y con el apoyo de programas de desarrollo y mejoras, como el presente en ejecución bajo la administración de CFI.
Es fundamental para este desarrollo la ley provincial que defiende los derechos de los artesanos y otorga un marco específico para la actividad.

LA INTERVENCIÓN

El objeto arquitectónico como contendor de actividades es indeterminado en su función hasta que no está equipado para una actividad especifica, en este caso se trata de una casa de habitación con un alto valor histórico transformado en institución a partir de la apropiación que hace de ella, con el fin de conservarla para la memoria colectiva, la provincia. De esta manera se transforma en reservorio de memoria, pero no una memoria pasiva e inerte como la de los museos, sino una memoria activa y propositiva en este caso como Mercado de Artesanías.
La intervención fue específicamente interior a pesar de que la propuesta inicial fue mas amplia, incluyendo fachadas, veredas y calles.

INTER-RELACIÓN ARQUITECTURA Y ARTESANIAS.

Respecto de los materiales propios del lugar, se realizó una búsqueda en torno a posibles aplicaciones de los sabes de los artesanos y su aplicación en el diseño y puesta en escena del proyecto, para ello se realizó una investigación y búsqueda de posibilidades visitando los artesanos en sus lugares de trabajo para vivenciar sus conocimientos.
Esta estrategia busca otorgar al lugar la impronta de la producción artesanal, demostrar al ocasional visitante las posibilidades de los materiales y de los objetos, en algunos casos se los usó incluso sin terminar, para demostrar justamente que se trata de un proceso manual que puede variar, crecer o incluso detenerse cuando sea necesario, cosa que lógicamente no pasa con la producción industrial.
Por otro lado se busca con esta estrategia que los artesanos se reconozcan el espacio donde sus productos serán expuestos y de esta manera lo tomen como una ámbito propio al que ellos ayudaron a construir.
En este sentido se trabajó con materiales y saberes del lugar, la cestería y el tejido, en el caso de la cestería, se trabajó con un artesano especialmente capacitado para el trabajo con fibra vegetal y experto en la realización de cestas y pantallas de iluminación, precisamente este último elemento fue el seleccionado para colocar en el muro detrás del mueble de atención, en la misma pared donde esta colocado el logo institucional del Mercado,  que presenta una forma de disco, estas pantallas fueron colocadas de manera aleatoria combinado con el logo, generando una imagen plástica a la que se le incorpora luz, estas pantallas están sin terminar, el artesano detuvo su producción en un momento determinado, y así fueron colocadas, provocando una imagen conceptual de alto contenido y representativa del trabajo artesanal, la estrategia se repite en el sector de los ponchos.

EL PROYECTO

IDEAS / MARCO CONCEPTUAL

Para la realización del proyecto se decidió intervenir en dos niveles, ya que de esta manera se da una respuesta integrada mas allá del propio edificio, ya que se trata de un elemento que tiene fuerte presencia en el contexto urbano en el que se encuentra y por otro lado el objetivo inmediato específico que es mejorar y adecuar el Mercado en su propuesta comercial y comunicacional.
Esta forma de trabajo, aún cuando excede el presupuesto y los ámbitos propios de este proyecto tiene por objetivo generar antecedentes para futuras inversiones a los fines de mejorar la propuesta. Por otro lado el edificio, la ciudad y la cultura son indivisibles y forman un conjunto que debe ser estudiado en su conjunto para lograr la puesta en valor de los mismo, aún cuando finalmente el trabajo se realice de forma parcial, como en este caso.

A] nivel urbano:

- entorno inmediato
- calles
- veredas
- fachadas
- comunicación
- accesibilidad

B] diseño interior

- envolventes
- cielorraso
- equipamientos
- zonificación
- iluminación
- comunicación
- vidrieras
- accesos

PROPUESTA INTERIOR.

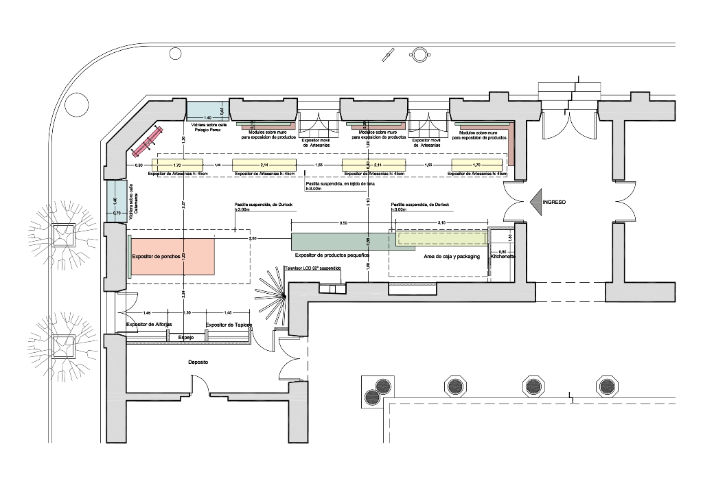
La idea es mantener la disposición lineal de organización del conjunto, para ello se genera y refuerza el eje longitudinal que va desde el ingreso y remata visualmente con la envolvente oeste.
Esta disposición ayuda al recorrido y contemplación de la totalidad del local en el ingreso, se tiene así una idea acabada del sitio y a partir de allí se ordenan luego los espacios expositivos según la clasificación que se detecto en el trabajo de investigación de campo realizada en la primera etapa.
Desde el ingreso se propone a la izquierda la zona de caja, atención y entrega de productos, allí se organiza un sector privado para las personas que trabajan allí y que funcionará como un sector para elementos personales, kitchenette y guardado, esto ayuda a la imagen general del local ya que quita de la vista los elementos que no forman parte de los productos o específicamente utilizados para la venta.
Sobre la misma pared izquierda que hace las veces de fondo de caja y enfrenta a los posibles compradores se ubicaría la imagen corporativa en polyfan, letras corpóreas pintado del color institucional.
El programa del mueble caja fue consensuado según el relevamiento, a continuación del caja se organiza un mueble de vidrio que tiene como programa la exposición de elementos pequeños que deben estar protegidos y que solo pueden ser manipulados por los vendedores del local.
Luego de agrupan los sectores de cestería, cerámica, textil, madera, cueros y otros, siempre agrupados para una rápida y ordenada decodificación por parte de los ocasionales visitantes, estos espacios también deben ser dotados de la comunicación y la señalética necesaria para entender el lugar y su organización, en lo posible en dos idiomas para facilitar el dialogo con turistas y visitantes extranjeros.

ZONIFICACIÓN DE LA EXPOSICIÓN.

Uno de los requerimientos de las autoridades del Mercado es la generación de espacios específico para muestras temporales de artesanos o artistas invitados, ese espacio debe articularse en ocasiones y no siempre será utilizado, en tal sentido la estrategia fue utilizar muebles que permiten desdoblarse para lograr sub espacios dentro del espacio general para lograr esos sectores específicos para muestras temporales.
Esta flexibilidad del espacio permite organizar diversas escenas según se necesite por temporadas, temáticas o personalizadas.
Para ellos es fundamental que los equipos tengan la posibilidad de movimiento, sean livianos y fáciles de articular, la característica fundamental de estos equipos es que resuelven con el mismo grado de eficiencia las diversas funciones según cambien su morfología o función.
Para una mejor organización del espacio, se decidió distribuir la exposición en distintas zona divididos en : TEXTIL, CERÁMICA, MADERA, PIEDRA Y METAL, CESTERÍA y OTROS.

LOGOS E IMAGEN CORPORATIVA.  

Para la aplicación de la Imagen Corporativa se realizaron tres Isologos corpóreos según especificado en el Manual de Aplicación de la Marca (Ver informe 2, Anexo Manual de Aplicación de la Marca) en distintas medidas, dos de 70cm de diámetro y el tercero de 50cm. En los tras casos se trabajó con polyfan de alta densidad y pintado con los colores institucionales, cada uno de ellos acompañados por los textos correspondientes, en el mismo material y terminación.
Para la colocación se decidió trabajar en los puntos de tensión del espacio según las siguientes disposiciones.

EL COLOR.

Son varias las consideraciones al crear un espacio interior. El color es uno de los comunicadores de mayor eficiencia en el espacio interior. Si bien son varios los elementos que participan del espacio el color es estratégico y fundamental.
El color hace que un espacio adquiera una personalidad, y de acuerdo al color elegido se afecta la reflexión de la luz, y con ello la percepción del espacio , puede verse más grande o pequeño, cambiar de humor o estilo. La elección de un esquema de color no es difícil.

ADECUACIÓN DE OTROS PUNTOS DE VENTA.

En el proyecto original esta previsto la realización solo a nivel de proyecto de elementos de soporte para la venta de objetos, artesanías, textiles y elementos propios del mercado, en diversos puntos de venta en distintos lugares del país y ocasionalmente del extranjero, como pueden ser, Shopping, Centro Comerciales, Aeropuertos, Ferias y Exposiciones nacionales o extranjeras, Representaciones comerciales o culturales de la Provincias de La Rioja en otras ciudades o provincias, como puede ser el caso testigo que se toma para el proyecto el edificio de La Casa de La Rioja en la Ciudad Autónoma de Buenos Aires.